Marki, ul. Wczasowa


Bianco Apartments to wyjątkowa inwestycja mieszkaniowa położona przy ulicy Wczasowej w Markach – w cichej, zielonej części miasta, w której można cieszyć się spokojem i bliskością natury, nie rezygnując z wygody codziennego życia.
Kameralne osiedle tworzą eleganckie, dwukondygnacyjne budynki o klasycznej architekturze, wyróżniające się jasnymi elewacjami, prostymi liniami i dużymi przeszkleniami.
Połączenie subtelnych detali z nowoczesną formą nadaje całości charakteru, który łączy ponadczasową elegancję z komfortem współczesnego stylu życia. Otoczenie inwestycji to spokojna, niska zabudowa jednorodzinna oraz liczne tereny zielone, które tworzą przyjazną i bezpieczną przestrzeń do życia.
Marki słyną z kameralnego klimatu, czystego powietrza i dogodnego położenia – zaledwie 3,7 km od granicy Warszawy. Dzięki temu mieszkańcy mogą na co dzień korzystać z uroków podmiejskiego spokoju, pozostając w zasięgu miejskich atrakcji i infrastruktury.
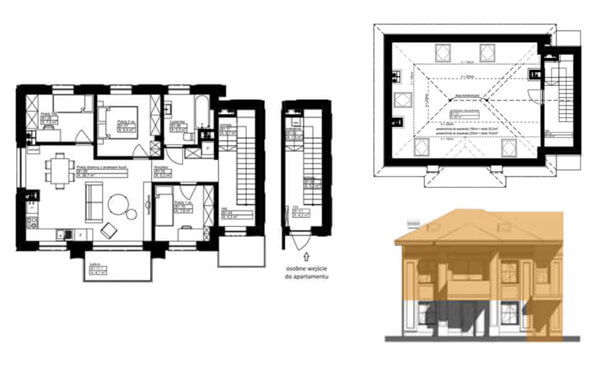
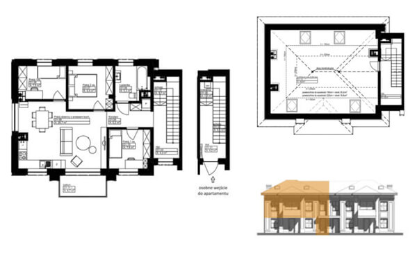
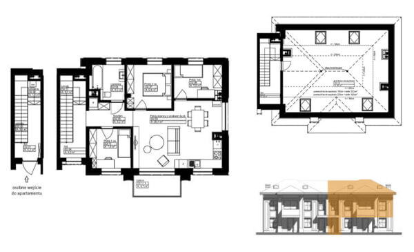
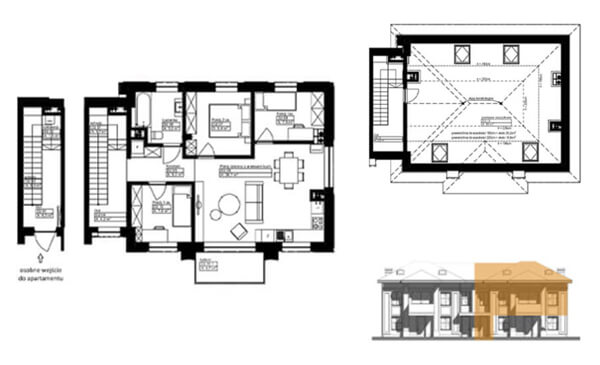
W ofercie Bianco Apartments znajdują się 3, 4, 5-pokojowe mieszkania o powierzchni od 60 do 152 m². Lokale zostały zaprojektowane z myślą o ergonomii i funkcjonalności – przestronne wnętrza z wyraźnym podziałem na strefy dzienną i prywatną pozwalają na dowolną aranżację według potrzeb mieszkańców. Duże okna gwarantują doskonałe doświetlenie pomieszczeń, a zamontowana klimatyzacja zapewnia komfort o każdej porze roku. Wszystkie mieszkania są bezczynszowe, co przekłada się na niższe koszty utrzymania. Do mieszkań na parterze przynależy ogródek o powierzchni od 110 do 150 m², natomiast mieszkania na piętrze posiadają poddasze z możliwością zaadoptowania.
Bianco Apartments to idealne miejsce dla osób poszukujących ciszy i kontaktu z naturą. Zaledwie 3 minuty spacerem dzielą inwestycję od malowniczego Parku Wenecja, gdzie można spędzać czas aktywnie lub po prostu odpocząć wśród zieleni. W bezpośrednim sąsiedztwie znajduje się także przystanek autobusowy, umożliwiający szybki dojazd do Warszawy. W pobliżu dostępne są również szkoły państwowe i prywatne oraz kościół, co sprawia, że okolica jest wyjątkowo przyjazna dla rodzin. W odległości 5 minut jazdy samochodem położone jest Centrum Handlowe Prima Park Marki, oferujące szeroki wybór sklepów, punktów usługowych i restauracji.
Bianco Apartments to kameralna inwestycja zlokalizowana przy ul. Wczasowej w Markach, w spokojnej, zielonej okolicy tuż pod Warszawą, łącząca bliskość natury z wygodą miejskiego życia.
Osiedle tworzą eleganckie, dwukondygnacyjne budynki o klasycznej architekturze, jasnych elewacjach i dużych przeszkleniach, wpisane w otoczenie niskiej zabudowy jednorodzinnej.
Mieszkania zostały zaprojektowane tak, aby maksymalnie wykorzystać przestrzeń i zapewnić komfort codziennego życia, z wyraźnym podziałem na strefy dzienną i prywatną oraz dużymi oknami gwarantującymi doskonałe doświetlenie.
Dodatkowym atutem jest bliskość Parku Wenecja, szkół, sklepów, przystanków komunikacji miejskiej oraz szybki dojazd do Warszawy, co czyni inwestycję idealną dla osób szukających ciszy, komfortu i dobrej lokalizacji.
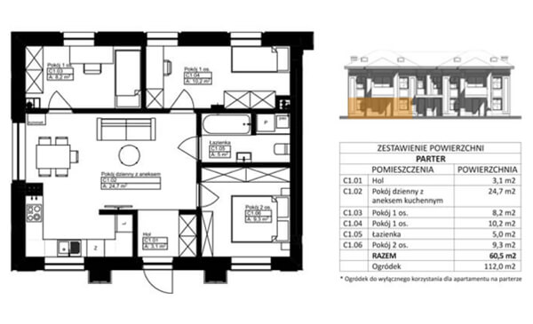
Powierzchnia ogródka: 110 m²
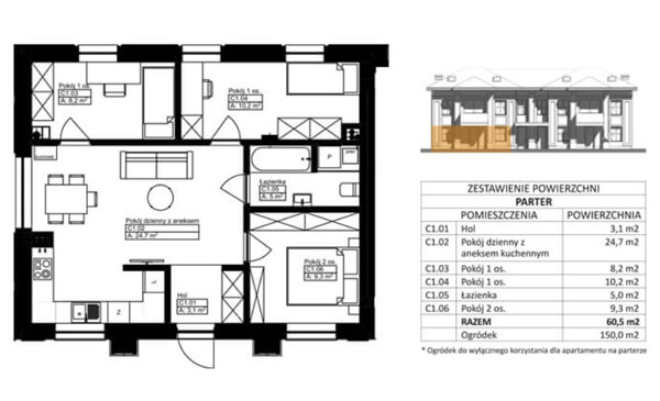
Powierzchnia lokalu: 60,5 m²
CENA HISTORYCZNA
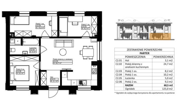
Powierzchnia ogródka: 125 m²
Powierzchnia lokalu: 60,5 m²
CENA HISTORYCZNA
Powierzchnia ogródka: 112 m²
Powierzchnia lokalu: 60,5 m²
CENA HISTORYCZNA
Powierzchnia ogródka: 115 m²
Powierzchnia lokalu: 60,5 m²
CENA HISTORYCZNA
Powierzchnia ogródka: 150 m²
Powierzchnia lokalu: 60,5 m²
CENA HISTORYCZNA
72,0 m² – powierzchnia użytkowa
11,0 m² – komunikacja (schody)
66,7 m² – poddasze nieużytkowe
Łącznie: 149,70 m²
CENA HISTORYCZNA
CENA PROMOCYJNA
72,0 m² – powierzchnia użytkowa
11,0 m² – komunikacja (schody)
66,7 m² – poddasze nieużytkowe
Łącznie: 149,70 m²
CENA HISTORYCZNA
CENA PROMOCYJNA
72,0 m² – powierzchnia użytkowa
11,0 m² – komunikacja (schody)
66,7 m² – poddasze nieużytkowe
Łącznie: 149,70 m²
CENA HISTORYCZNA
CENA PROMOCYJNA
72,0 m² – powierzchnia użytkowa
11,0 m² – komunikacja (schody)
66,7 m² – poddasze nieużytkowe
Łącznie: 149,70 m²
CENA HISTORYCZNA
CENA PROMOCYJNA
72,0 m² – powierzchnia użytkowa
11,0 m² – komunikacja (schody)
66,7 m² – poddasze nieużytkowe
Łącznie: 149,70 m²
CENA HISTORYCZNA
CENA PROMOCYJNA
BM5 PIĘTRO
72,0 m² – powierzchnia użytkowa
11,0 m² – komunikacja (schody)
66,7 m² – poddasze nieużytkowe
Łącznie: 149,70 m²
CENA HISTORYCZNA
CENA PROMOCYJNA
BM4 PIĘTRO
72,0 m² – powierzchnia użytkowa
11,0 m² – komunikacja (schody)
66,7 m² – poddasze nieużytkowe
Łącznie: 149,70 m²
CENA HISTORYCZNA
CENA PROMOCYJNA
Powierzchnia ogródka: 110 m²
Powierzchnia lokalu: 60,5 m²
CENA HISTORYCZNA
72,0 m² – powierzchnia użytkowa
11,0 m² – komunikacja (schody)
66,7 m² – poddasze nieużytkowe
Łącznie: 149,70 m²
CENA HISTORYCZNA
CENA PROMOCYJNA
72,0 m² – powierzchnia użytkowa
11,0 m² – komunikacja (schody)
66,7 m² – poddasze nieużytkowe
Łącznie: 149,70 m²
CENA HISTORYCZNA
CENA PROMOCYJNA
Powierzchnia ogródka: 125 m²
Powierzchnia lokalu: 60,5 m²
CENA HISTORYCZNA
Powierzchnia ogródka: 115 m²
Powierzchnia lokalu: 60,5 m²
CENA HISTORYCZNA
CENA PROMOCYJNA
Powierzchnia ogródka: 112 m²
Powierzchnia lokalu: 60,5 m²
CENA HISTORYCZNA
72,0 m² – powierzchnia użytkowa
11,0 m² – komunikacja (schody)
66,7 m² – poddasze nieużytkowe
Łącznie: 149,70 m²
CENA HISTORYCZNA
Powierzchnia ogródka: 150 m²
Powierzchnia lokalu: 60,5 m²
CENA HISTORYCZNA
Zalety inwestycji
Klasyczny design
budynków
Apartamenty
bezczynszowe
Klimatyzacja
Funkcjonalność
pomieszczeń
Kameralność
osiedla
Cennik
| Lokal | Powierzchnia łączna |
Powierzchnia apartamentu |
Poddasze nieużytkowe - dodatkowa powierzchnia liczona po podłodze |
Powierzchnia ogródka |
Cena promocyjna za m² apartamentu |
Cena promocyjna apartamentu |
Cena promocyjna za wyłączne prawo do ogródka za m² |
Cena promocyjna za wyłączne prawo do ogródka* |
Cena promocyjna za wyłączne prawo do poddasza nieużytkowego za m²* |
Cena promocyjna za wyłączne prawo do poddasza nieużytkowego* | Lokal | Cena promocyjna. Całkowita cena apartamentu z ogródkiem lub poddaszem nieużytkowym, bez 2 miejsc postojowych za m² | Cena promocyjna. Całkowita cena apartamentu z ogródkiem lub poddaszem nieużytkowym, bez 2 miejsc postojowych | Cena promocyjna za 2 miejsca postojowe |
Cena promocyjna. Całkowita cena apartamentu z 2 miejscami postojowymi oraz ogródkiem lub poddaszem nieużytkowym za m² |
Cena promocyjna. Całkowita cena apartamentu z 2 miejscami postojowymi oraz ogródkiem lub poddaszem nieużytkowym |
Dostępność | Lokal | Powierzchnia łączna | Powierzchnia apartamentu | Poddasze nieużytkowe - dodatkowa powierzchnia liczona po podłodze | Powierzchnia ogródka |
|---|---|---|---|---|---|---|---|---|---|---|---|---|---|---|---|---|---|---|---|---|---|---|
| BM5 Parter | 60,50 m² | 60,50 m² | - | 110 m² |
9 955,00 zł
Ceny historyczne
|
602 277,50 zł
Ceny historyczne
|
850,00 zł
Ceny historyczne
|
93 500,00 zł
Ceny historyczne
|
- | - | BM5 Parter |
11 500,45 zł
Ceny historyczne
|
695 777,50 zł
Ceny historyczne
|
30 000,00 zł
Ceny historyczne
|
11 996,32 zł
Ceny historyczne
|
725 777,50 zł
Ceny historyczne
|
wolny | BM5 Parter | 60,50 m² | 60,50 m² | - | 110 m² |
| BM4 Parter | 60,50 m² | 60,50 m² | - | 125 m² |
10 243,00 zł
Ceny historyczne
|
619 701,50 zł
Ceny historyczne
|
850,00 zł
Ceny historyczne
|
106 250,00 zł
Ceny historyczne
|
- | - | BM4 Parter |
11 999,20 zł
Ceny historyczne
|
725 951,50 zł
Ceny historyczne
|
30 000,00 zł
Ceny historyczne
|
12 495,07 zł
Ceny historyczne
|
755 951,50 zł
Ceny historyczne
|
wolny | BM4 Parter | 60,50 m² | 60,50 m² | - | 125 m² |
| BM5 Piętro | 149,70 m² | 72,00 m² | 66,70 m² | - |
8 378,00 zł
Ceny historyczne
|
603 216,00 zł
Ceny historyczne
|
- | - |
2 500,00 zł
Ceny historyczne
|
166 750,00 zł
Ceny historyczne
|
BM5 Piętro |
10 693,97 zł
Ceny historyczne
|
769 966,00 zł
Ceny historyczne
|
30 000,00 zł
Ceny historyczne
|
11 110,64 zł
Ceny historyczne
|
799 966,00 zł
Ceny historyczne
|
wolny | BM5 Piętro | 149,70 m² | 72,00 m² | 66,70 m² | - |
| BM2 Parter | 60,50 m² | 60,50 m² | - | 115 m² |
11 442,15 zł
Ceny historyczne
|
692 250,00 zł
Ceny historyczne
|
850,00 zł
Ceny historyczne
|
97 750,00 zł
Ceny historyczne
|
- | - | BM2 Parter |
13 057,85 zł
Ceny historyczne
|
790 000,00 zł
Ceny historyczne
|
30 000,00 zł
Ceny historyczne
|
13 553,72 zł
Ceny historyczne
|
820 000,00 zł
Ceny historyczne
|
sprzedany | BM2 Parter | 60,50 m² | 60,50 m² | - | 115 m² |
| BM3 Parter | 60,50 m² | 60,50 m² | - | 112 m² |
11 500,00 zł
Ceny historyczne
|
695 750,00 zł
Ceny historyczne
|
850,00 zł
Ceny historyczne
|
95 200,00 zł
Ceny historyczne
|
- | - | BM3 Parter |
13 073,55 zł
Ceny historyczne
|
790 950,00 zł
Ceny historyczne
|
30 000,00 zł
Ceny historyczne
|
13 569,42 zł
Ceny historyczne
|
820 950,00 zł
Ceny historyczne
|
wolny | BM3 Parter | 60,50 m² | 60,50 m² | - | 112 m² |
| BM4 Piętro | 149,70 m² | 72,00 m² | 66,70 m² | - |
8 885,00 zł
Ceny historyczne
|
639 720,00 zł
Ceny historyczne
|
- | - |
2 500,00 zł
Ceny historyczne
|
166 750,00 zł
Ceny historyczne
|
BM4 Piętro |
11 200,97 zł
Ceny historyczne
|
806 470,00 zł
Ceny historyczne
|
30 000,00 zł
Ceny historyczne
|
11 617,64 zł
Ceny historyczne
|
836 470,00 zł
Ceny historyczne
|
wolny | BM4 Piętro | 149,70 m² | 72,00 m² | 66,70 m² | - |
| BM1 Parter | 60,50 m² | 60,50 m² | - | 150 m² |
11 500,00 zł
Ceny historyczne
|
695 750,00 zł
Ceny historyczne
|
850,00 zł
Ceny historyczne
|
127 500,00 zł
Ceny historyczne
|
- | - | BM1 Parter |
13 607,44 zł
Ceny historyczne
|
823 250,00 zł
Ceny historyczne
|
30 000,00 zł
Ceny historyczne
|
14 103,31 zł
Ceny historyczne
|
853 250,00 zł
Ceny historyczne
|
wolny | BM1 Parter | 60,50 m² | 60,50 m² | - | 150 m² |
| BM2 Piętro | 149,70 m² | 72,00 m² | 66,70 m² | - |
9 680,00 zł
Ceny historyczne
|
696 960,00 zł
Ceny historyczne
|
- | - |
2 500,00 zł
Ceny historyczne
|
166 750,00 zł
Ceny historyczne
|
BM2 Piętro |
11 995,97 zł
Ceny historyczne
|
863 710,00 zł
Ceny historyczne
|
30 000,00 zł
Ceny historyczne
|
12 412,64 zł
Ceny historyczne
|
893 710,00 zł
Ceny historyczne
|
wolny | BM2 Piętro | 149,70 m² | 72,00 m² | 66,70 m² | - |
| BM3 Piętro | 149,70 m² | 72,00 m² | 66,70 m² | - |
9 680,00 zł
Ceny historyczne
|
696 960,00 zł
Ceny historyczne
|
- | - |
2 500,00 zł
Ceny historyczne
|
166 750,00 zł
Ceny historyczne
|
BM3 Piętro |
11 995,97 zł
Ceny historyczne
|
863 710,00 zł
Ceny historyczne
|
30 000,00 zł
Ceny historyczne
|
12 412,64 zł
Ceny historyczne
|
893 710,00 zł
Ceny historyczne
|
wolny | BM3 Piętro | 149,70 m² | 72,00 m² | 66,70 m² | - |
| BM1 Piętro | 149,70 m² | 72,00 m² | 66,70 m² | - |
11 150,00 zł
Ceny historyczne
|
802 800,00 zł
Ceny historyczne
|
- | - |
2 500,00 zł
Ceny historyczne
|
166 750,00 zł
Ceny historyczne
|
BM1 Piętro |
13 465,97 zł
Ceny historyczne
|
969 550,00 zł
Ceny historyczne
|
30 000,00 zł
Ceny historyczne
|
13 882,64 zł
Ceny historyczne
|
999 550,00 zł
Ceny historyczne
|
sprzedany | BM1 Piętro | 149,70 m² | 72,00 m² | 66,70 m² | - |
08.05.2026 - 713 900,00 zł
08.05.2026 - 11 800,00 zł
08.05.2026 - 850,00 zł
08.05.2026 - 93 500,00 zł
08.05.2026 - 13 345,45 zł
08.05.2026 - 807 400,00 zł
08.05.2026 - 30 000,00 zł
08.05.2026 - 13 841,32 zł
08.05.2026 - 837 400,00 zł
08.05.2026 - 713 900,00 zł
08.05.2026 - 11 800,00 zł
08.05.2026 - 850,00 zł
08.05.2026 - 106 250,00 zł
08.05.2026 - 13 556,20 zł
08.05.2026 - 820 150,00 zł
08.05.2026 - 30 000,00 zł
08.05.2026 - 14 052,07 zł
08.05.2026 - 850 150,00 zł
08.05.2026 - 806 400,00 zł
08.05.2026 - 11 200,00 zł
08.05.2026 - 2 500,00 zł
08.05.2026 - 166 750,00 zł
08.05.2026 - 13 515,97 zł
08.05.2026 - 973 150,00 zł
08.05.2026 - 30 000,00 zł
08.05.2026 - 13 932,64 zł
08.05.2026 - 1 003 150,00 zł
08.05.2026 - 713 900,00 zł
08.05.2026 - 11 800,00 zł
08.05.2026 - 850,00 zł
08.05.2026 - 97 750,00 zł
08.05.2026 - 13 415,70 zł
08.05.2026 - 811 650,00 zł
08.05.2026 - 30 000,00 zł
08.05.2026 - 13 911,57 zł
08.05.2026 - 841 650,00 zł
08.05.2026 - 713 900,00 zł
08.05.2026 - 11 800,00 zł
08.05.2026 - 850,00 zł
08.05.2026 - 95 200,00 zł
08.05.2026 - 13 373,55 zł
08.05.2026 - 809 100,00 zł
08.05.2026 - 30 000,00 zł
08.05.2026 - 13 869,42 zł
08.05.2026 - 839 100,00 zł
08.05.2026 - 806 400,00 zł
08.05.2026 - 11 200,00 zł
08.05.2026 - 2 500,00 zł
08.05.2026 - 166 750,00 zł
08.05.2026 - 13 515,97 zł
08.05.2026 - 973 150,00 zł
08.05.2026 - 30 000,00 zł
08.05.2026 - 13 932,64 zł
08.05.2026 - 1 003 150,00 zł
08.05.2026 - 713 900,00 zł
08.05.2026 - 11 800,00 zł
08.05.2026 - 850,00 zł
08.05.2026 - 127 500,00 zł
08.05.2026 - 13 907,44 zł
08.05.2026 - 841 400,00 zł
08.05.2026 - 30 000,00 zł
08.05.2026 - 14 403,31 zł
08.05.2026 - 871 400,00 zł
08.05.2026 - 806 400,00 zł
08.05.2026 - 11 200,00 zł
08.05.2026 - 2 500,00 zł
08.05.2026 - 166 750,00 zł
08.05.2026 - 13 515,97 zł
08.05.2026 - 973 150,00 zł
08.05.2026 - 30 000,00 zł
08.05.2026 - 13 932,64 zł
08.05.2026 - 1 003 150,00 zł
08.05.2026 - 806 400,00 zł
08.05.2026 - 11 200,00 zł
08.05.2026 - 2 500,00 zł
08.05.2026 - 166 750,00 zł
08.05.2026 - 13 515,97 zł
08.05.2026 - 973 150,00 zł
08.05.2026 - 30 000,00 zł
08.05.2026 - 13 932,64 zł
08.05.2026 - 1 003 150,00 zł
08.05.2026 - 806 400,00 zł
08.05.2026 - 11 200,00 zł
08.05.2026 - 2 500,00 zł
08.05.2026 - 166 750,00 zł
08.05.2026 - 13 515,97 zł
08.05.2026 - 973 150,00 zł
08.05.2026 - 30 000,00 zł
08.05.2026 - 13 932,64 zł
08.05.2026 - 1 003 150,00 zł
Lokalizacja
ul. Wczasowa, Marki